Imagen destacada

Planos

Ubicación


VIVIENDA P

Tipo: Vivienda

Ciudad: Bragado

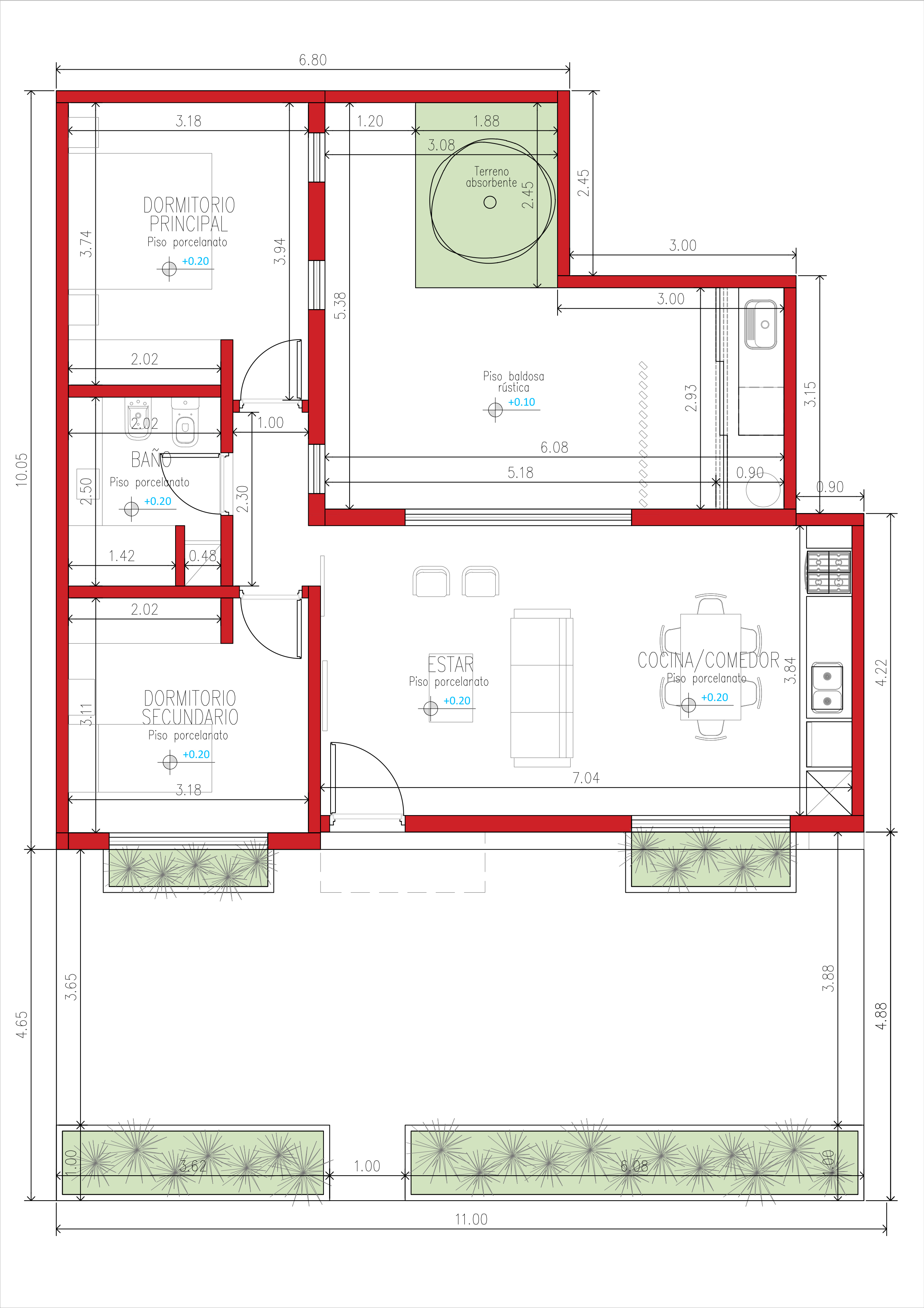
Superficie: 68.30 m²

Año: 2024

Descripción:

Esta vivienda se encuentra implantada en un terreno de 10x11 metros de frente. La distribución de la vivienda en forma de “L” permite aprovechar al máximo el espacio, liberando un sector de patio al que se comunican los distintos ambientes, permitiendo la buena iluminación y ventilación de cada uno de ellos. En su patio, se incluye un espacio verde que genera visuales desde el interior que enriquecen los espacios, y contiene un lavadero escondido tras cerramientos corredizos de aluminio que permiten en un pequeño espacio sintetizar espacio de lavado y de tendido, contenido por perfiles de wpc.

Distribución:

La vivienda cuenta con estar, comedor y cocina integrados en su espacio social, con salida al patio y lavadero. En su espacio privado cuenta con dos dormitorios y un baño completo.

Características:

1. Pisos: Porcelanato simil madera
2. Mesadas: Piedra cuarzo
3. Mobiliario: Muebles de cocina, baño y placares de melamina color blanco
4. Artefactos: Cocina a gas y termotanque
5. Griferías FV linea Alerce y artefactos de baño marca Roca- Línea The Gap
6. Aberturas de aluminio anodizado color peltre con vidrio DVH. Persianas de aluminio color peltre manuales y motorizadas
7. Puerta de ingreso de madera lenga
8. Calefacción a gas por estufas tiro balanceado marca Coppens


Documento sin título
Consultas
Hola! En que puedo ayudarte?
541164827500
x
Consultas